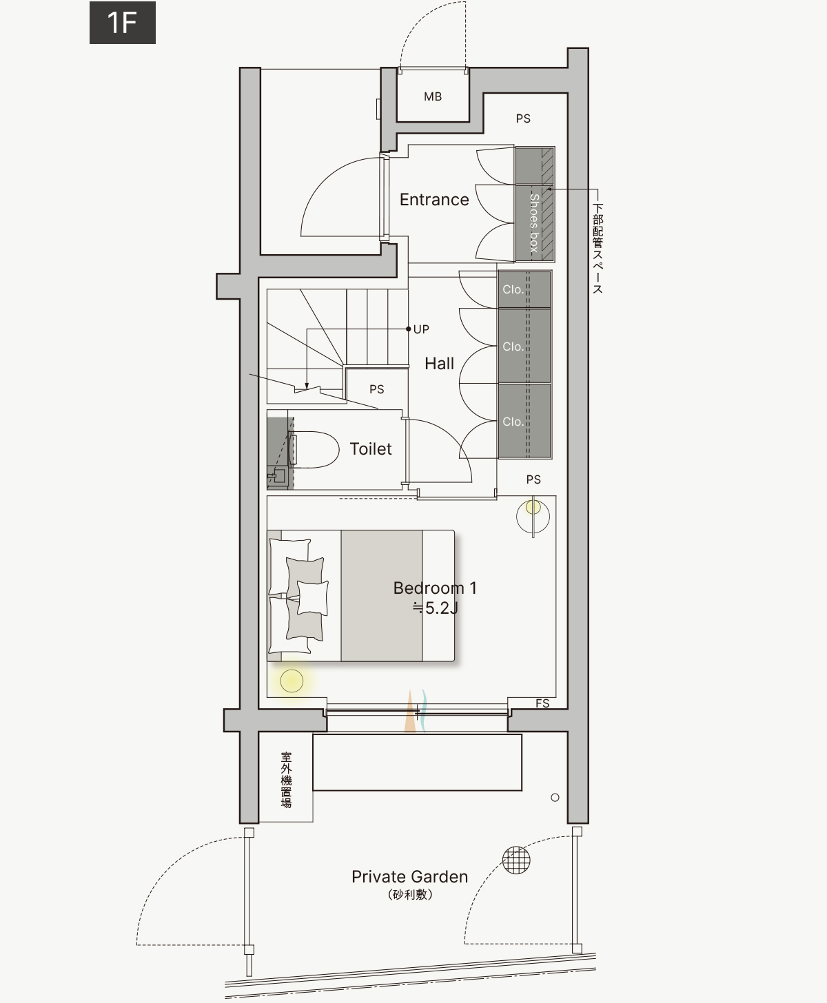
F TYPE (112號室)
2LDK
専有面積/ 66.59㎡(約20.14坪)
※メーターボックス(MB)面積/0.43㎡含む


Clo.:クローゼット Lin.:リネン庫
R:冷蔵庫置場 W:洗濯機置場
MB:メーターボックス PS:パイプスペース
FS:設備配管スペース
※掲載の間取図は設計図書を基に描き起こしたもので、実際とは多少異なる場合があります。
※掲載の寫真はFタイプモデルルーム(116號室)を2025年2月に撮影したものです。間取図?寫真內の家具?家電?調度品等は販売価格に含まれません。※オプションは有償となります。