35th?36th
Floor/T-Grade
35階?36階フロア/T-Grade

外観完成予想CG
寛ぎと昴揚をともに演出する洗練された空間。
駐車場最優先選択権有
自由設計変更対応可
プランセレクト選択可
LIVING DINING
天井高から設備仕様まで、グレードを高めたしつらえ。

LIVING
ゆとりの天井高とハイサッシが開放的で心地いいリビング?ダイニング。
最高天井高約3mを確保し
開放感を演出するサッシを採用
※リビング?ダイニング(T-Fタイプはリビング?ダイニング?キッチン)のみ
リビング?ダイニングは、最高天井高約3mを確保。さらに、約2.4m~約2.5mのサッシを採用することで、開放的でゆとりある空間を実現しています。

35?36階の2フロアにアクセスできる
居住者だけのセキュリティ
サブエントランスアプローチ (1階)及び風除室(2階)、1?2階エレベーターホール、専有部(住戸玄関)のセキュリティに加え、35?36階にはさらにワンランク上の安心を。
居住者が主に利用するエレベーター(1?4號機)內にセンサー式のキーリーダーを設置。35?36階のキーだけを識別して、そのキーを持つ居住者が手をかざすことで初めて35?36階へのアクセスが可能になります。

參考寫真
二重床?二重天井構造
住戸內の設備配管?配線のコンクリートへの埋め込みを少なくした二重床?二重天井を採用しています。
※床暖房部分には床暖房パネルがあります。
※マイスタイルデザインの床仕様によりイラストと異なる場合があります。

すっきりとした空間を演出する天井カセット式エアコン
リビング?ダイニング(T-F:リビング?ダイニング?キッチン)には、室內をスッキリとした印象に保つ天井カセット型エアコンを標準裝備しました。
※タイプにより臺數が異なります。
1臺設置:T‐B
2臺設置:T‐A、T‐C、T‐D、T‐E、T‐G、T‐H
3臺設置:T‐F

華やかに、清らかに、磨き上げられた機能美。
KITCHEN
キッチン

シーザーストーン天板[側面含む]
キッチンの天板には、90%以上がクォーツでできている人造石、シーザーストーンを採用。デザイン性や耐久性に優れた素材です。
※標準仕様とは形狀が異なります。

UV塗裝扉
キッチン扉には、光沢があり美しく、傷が付きにくいUV塗裝を施しています。

スライド収納[ソフトクローズ]
収納物全體を上から見渡せる便利なスライド式収納。ソフトクローズ機能付きでゆっくり靜かに閉まります。
足元部分には巾木収納も設けています。

食器洗い乾燥機[深型60L]
洗浄から乾燥まで自動で行い、家事の負擔を減らし、節水にも貢獻します。50℃以上の高溫?高圧水流で洗うと同時に、食器の除菌※1ができる「ストリーム除菌洗浄」機能付き。
メーカー參考寫真
タッチレス水栓
引き出して使える便利な浄水機能付シャワー水栓。センサー部分に手をかざすと自動で吐水?止水ができるタッチレス水栓です。
※定期的なカートリッジ交換が必要となります。

ディスポーザ[自動給水裝置付き]
排水口部で生ゴミを粉砕して排水と一緒に流し、敷地內に設けた処理裝置で生ごみを分解し下水道に流すディスポーザを設置。ディスポーザのスイッチを入れると水栓から自動で水が流れる自動給水裝置付きです。
※粉砕できないものもございます。
BATHROOM
バスルーム

浴室暖房乾燥機
[ミストサウナ機能付]
乾燥や暖房、涼風、24時間換気機能に加え、ミストサウナ機能を備えています。

浴室タイル貼り
壁面や床面に磁器質タイルを採用しています。

コンフォートウェーブ
クリックシャワー
ウェーブ水流と、スプレーシャワーの2つの水流で快適な刺激のある浴び心地。節水しながら快適なシャワータイムを実現します。

フルワイドミラー
空間に広々とした奧行をもたらし、高級感のある雰囲気を演出するワイドミラーを採用しています。表面を炭素の膜で覆ったお掃除ラクラク鏡。簡単なお手入れで水あかを落とせます。
POWDER ROOM

カウンタートップ式陶器ボウル
洗面化粧臺には、陶器製の洗面ボウルを採用しました。傷がつきにくく陶器ならではの美しさを保ちます。

タッチレス水栓
センサー部分に手をかざすと自動で吐水?止水ができ、汚れた手でレバーに觸れる必要もありません。
TOILET

ローシルエットトイレ
凹凸の少ないスタイリッシュなトイレ。便利なオート開閉?オート洗浄仕様です。

手洗いカウンター
すっきりとしたデザインの手洗いカウンターを設置。センサーに手をかざすだけで吐水と止水ができるタッチレス水栓です。
T-DTYPE
3LDK
+SIC+2WIC
住居専有面積 107.17㎡(約32.41坪)
※戸別宅配ボックス面積1.56㎡を含む
■バルコニー面積/18.47㎡(約5.58坪)
■サービスバルコニー面積/1.07㎡(約0.32坪)
コーナーウインドウで眺望と暮らせるリビング?ダイニング。
南面に2つの洋室を配した、開放的な3LDK南西角住戸。
多忙な朝でも2名が快適に使えるツインボウルの洗面室。

T-FTYPE
3LDK+N+P
+2SIC+3WIC
住居専有面積 126.57㎡(約38.28坪)
※戸別宅配ボックス面積1.60㎡を含む
■バルコニー面積/23.76㎡(約7.18坪)
■サービスバルコニー面積/1.07㎡(約0.32坪)
眺望のもとに集う、約31.7帖のリビング?ダイニング?キッチン。
南面に3つの洋室を配した、開放的な3LDK東南角住戸。
2名が同時に使える、ツインボウルの洗面室。

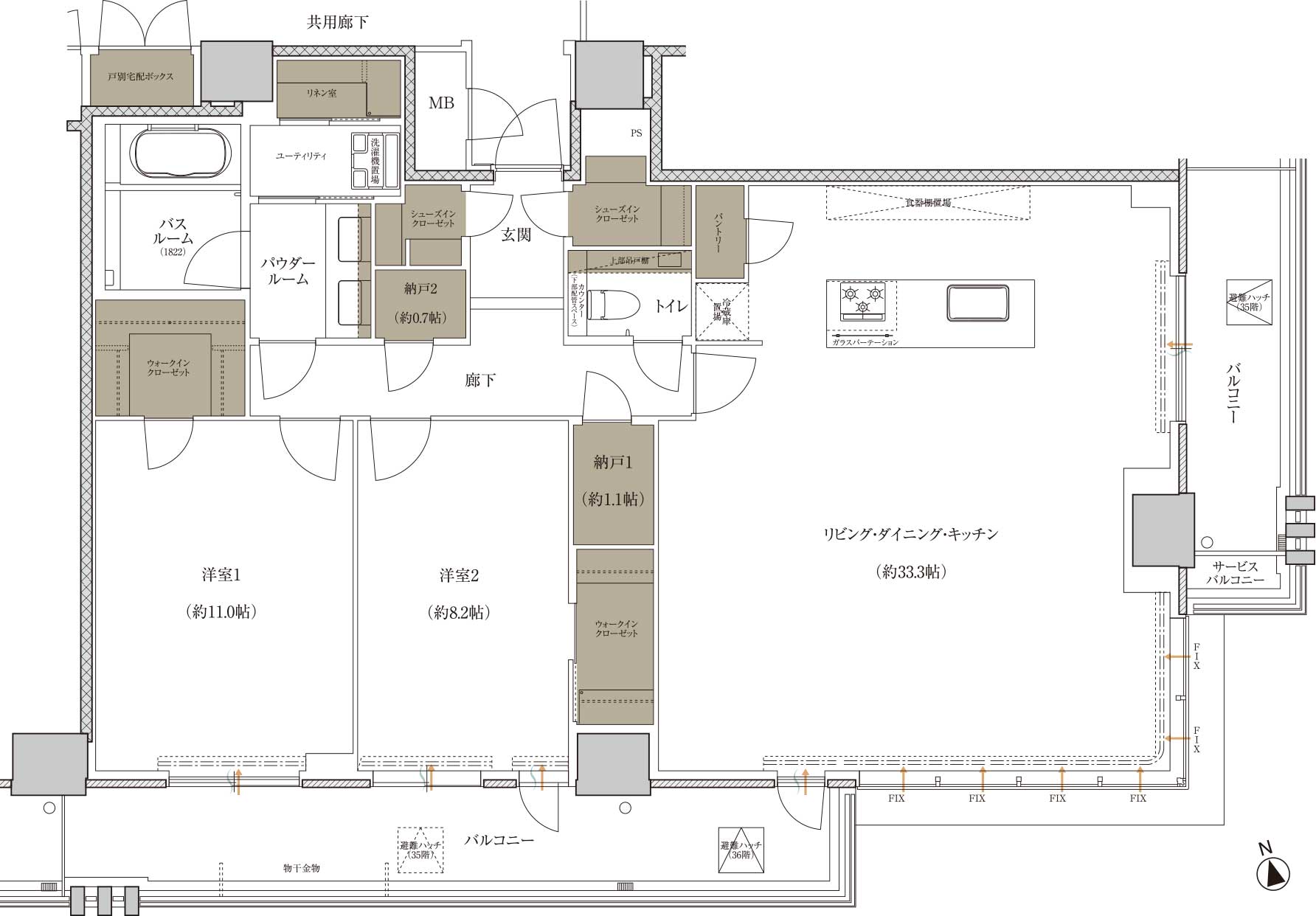
T-FTYPE PLAN
SELECT
2LDK+2N+P
+2SIC+2WIC
住居専有面積 126.57㎡(約38.28坪)
※戸別宅配ボックス面積1.60㎡を含む
■バルコニー面積/23.76㎡(約7.18坪)
■サービスバルコニー面積/1.07㎡(約0.32坪)
眺望のもとに集う、約33.3帖のリビング?ダイニング?キッチン。
南面に2つの洋室を配した、開放的な2LDK東南角住戸。
2名が同時に使える、ツインボウルの洗面室。




