
OVER 100㎡
PLAN
モデルルーム(Aタイプ/プランセレクト※オプション仕様(有償)?インテリア工事(有償)採用)※2025年3月撮影
北西角住戸。リビングコーナーサッシプラン(鏡壁付)。
Atype
3LDK+WIC+SIC
107.72㎡
□バルコニー面積:3.15㎡
□サービスバルコニー面積:4.84㎡
※掲載の間取図は、設計図書を基に描き起こしたもので、実際とは多少異なる場合があります。梁や下がり天井は表現されておりませんが、居室に大梁による下がり天井が出ます。
WIC=ウォークインクローゼット SIC=シューズインクローゼット PS=パイプスペース MB=メーターボックス
収納 床暖房

ガス衣類乾燥機「乾太くん」

ガス衣類乾燥機「乾太くん」は、洗濯物が約90分※1で乾く。パワフルな溫風で繊維が根元から立ち上がり、ふんわり仕上がる。衣類乾燥を速く、心地よく。あなたの暮らしの質を高めます。
※Atypeと最上階住戸(J?K?Lタイプ)にはガス衣類乾燥機「乾太くん」が標準で設置されています。
南東角住戸。アイランドキッチンプラン。
Htype
3LDK+N+3WIC+SIC
107.44㎡
6階
□バルコニー面積:9.28㎡
□サービスバルコニー面積:2.40㎡
4?8階
□バルコニー面積:9.08㎡
□サービスバルコニー面積:2.40㎡
※掲載の間取図は、設計図書を基に描き起こしたもので、実際とは多少異なる場合があります。梁や下がり天井は表現されておりませんが、居室に大梁による下がり天井が出ます。
N=納戸 WIC=ウォークインクローゼット SIC=シューズインクローゼット PS=パイプスペース MB=メーターボックス
収納 床暖房

TOP FLOOR
最上階北西角住戸。舟形と左大文字を一望できるリビングコーナーサッシプラン。
Jtype
3LDK+2WIC+SIC
112.22㎡
□バルコニー面積:3.15㎡
□サービスバルコニー面積:4.84㎡
※掲載の間取図は、設計図書を基に描き起こしたもので、実際とは多少異なる場合があります。梁や下がり天井は表現されておりませんが、居室に大梁による下がり天井が出ます。
WIC=ウォークインクローゼット SIC=シューズインクローゼット PS=パイプスペース MB=メーターボックス
収納 床暖房
眺望は、將來にわたって保証されるものではありません。
最上階南西角住戸。
トランクルーム付の當マンション
最大LDK(28.9帖)プラン。
Ktype
3LDK+3WIC+SIC
121.54㎡トランクルーム面積:1.65㎡含む
□バルコニー面積:6.94㎡
□サービスバルコニー面積:7.09㎡
□トランクルーム面積:1.65㎡
※掲載の間取図は、設計図書を基に描き起こしたもので、実際とは多少異なる場合があります。梁や下がり天井は表現されておりませんが、居室に大梁による下がり天井が出ます。
WIC=ウォークインクローゼット
SIC=シューズインクローゼット
PS=パイプスペース MB=メーターボックス
収納 床暖房

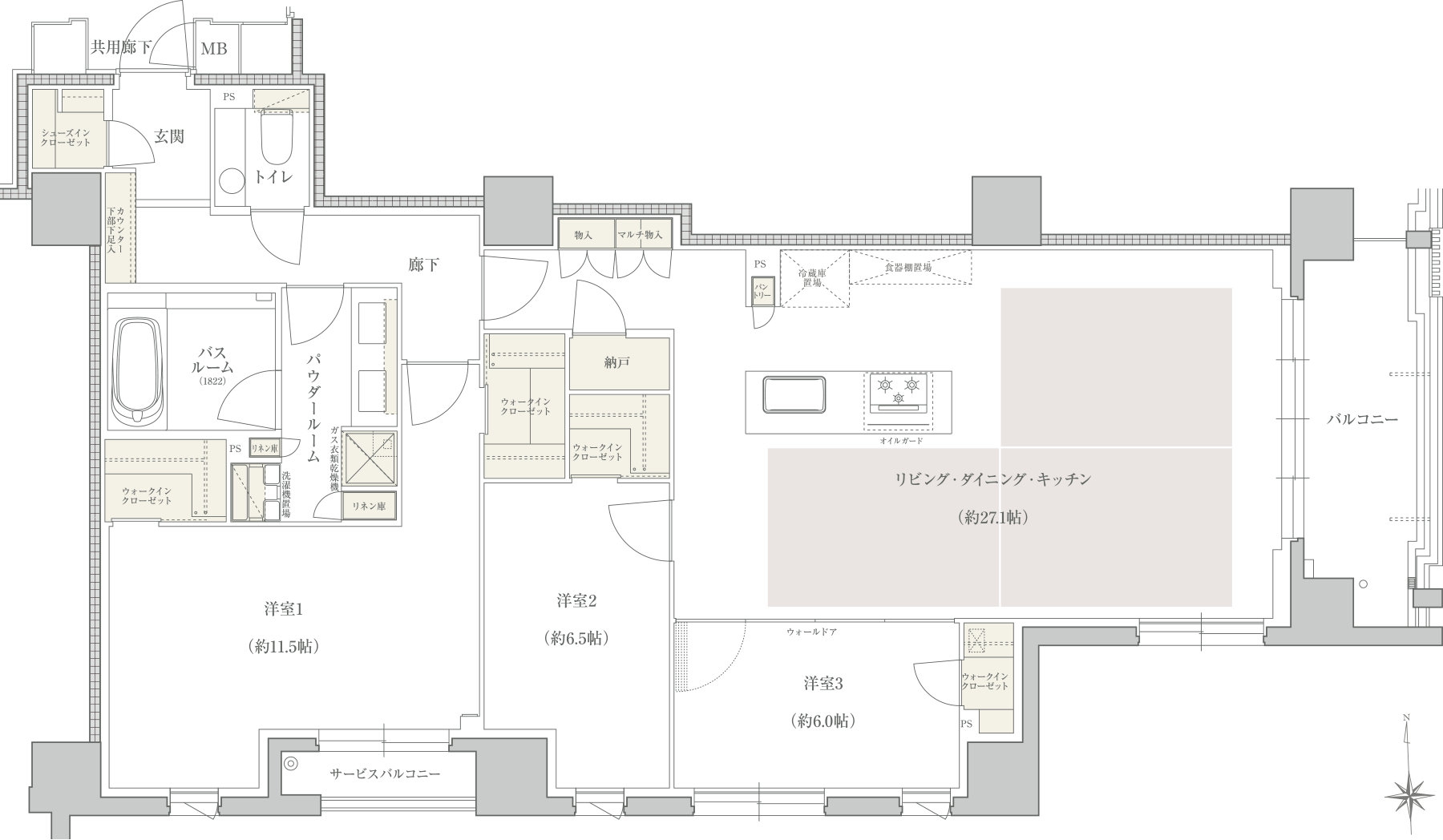
五山を望む最上階東南角住戸。洋室11.5帖プラン。
Ltype
3LDK+N+4WIC+SIC
116.54㎡
□バルコニー面積:9.08㎡
□サービスバルコニー面積:2.20㎡
※掲載の間取図は、設計図書を基に描き起こしたもので、実際とは多少異なる場合があります。梁や下がり天井は表現されておりませんが、居室に大梁による下がり天井が出ます。
N=納戸 WIC=ウォークインクローゼット SIC=シューズインクローゼット PS=パイプスペース MB=メーターボックス
収納 床暖房
眺望は、將來にわたって保証されるものではありません。
TOPフロアは専用の屋內平面駐車場付
最上階住戸(J?K?Lタイプ)には、屋內平面駐車場の専用使用権を設定しております。
※詳細は係員にお問い合わせください。

Image


