新型コロナウイルス感染拡大により在宅の時間が増えた影響もあり、
今見直されているのが「快適な住まいづくり」。
特にお子さまがいらっしゃるご家庭においては、
親子で過ごす時間をもっと豊かにしたいと考える方も多いのではないでしょうか。
一方でお子さまが住まいで過ごす時間が増えたことで、
安全面や生活習慣面の不安もより顕在化してきているようです。
親子で安心して過ごせて、褒める機會も多くなり笑顔も増える、
そんな住まい環境をつくることができると、きっとお子さまの自己肯定感も育まれていくはずです。
前編では、子育てメディア「LITALICO発達ナビ」編集長?牟田暁子さんとの対談から
インスパイアされたダイワハウスハウジングマイスター隼田洋平。
後編では【自己肯定感を育む住まい】のモデルプランを描き下ろしてご提案。
お子さまが活き活きと過ごせ、
ご家族の笑顔やつながりが自然と生まれる設計のポイントを隼田が解き明かします。
Profile
牟田 暁子(むたあきこ)
LITALICO発達ナビ編集長
東京都杉並區生まれ。主婦の友社他出版社等を経て、2017年LITALICO入社。高校生の長男、先天性の身體?知的障害のある長女がいる。地元の仲間とともにプレーパークの運営も行っていて、どんな人も地域の中で集い、ともに暮らせる社會をつくっていきたいと考えている。
參考:LITALICO発達ナビ
京都支社 住宅事業部 設計課 主任
一級建築士、ハウジングマイスター(社內認定)
愛媛県松山市生まれ。一級建築士である父との建築物めぐりを日常として育ち、迷うことなく設計士の道を歩んだ。「住まい=家族が幸せになれる場所」との信念を持つ。家族の時間をより豊かにし、住まう人一人ひとりが快適に暮らせる家――団らんの時間も、プライベートな空間も大切にした、有機的なつながりを創造できる設計を行っている。
まずは暮らしを想像し、自然な動線を創造する
牟田:前回は、自己肯定感を育む住まいづくりについてお話しさせていただきました。そこで、子育て世代のユーザーの悩みとして多く寄せられる安全面と片付けのしやすさを考慮することや、學習習慣を定著させる環境と冒険心を育める設計、そしてなにより、家族のつながりを創造することが大切であるという観點が挙げられました。
隼田:私は、家というのは家族が快適に住まう場所だと思っています。身體的にも精神的にも快適に過ごせることが大切です。快適な家づくりというと、多くの人は収納や部屋の広さを思い浮かべるかもしれません。ですがそれは、必要條件であっても、必要要素ではないと思っています。
人は暮らしの中で景色を見ます。家族と過ごす景色、みんなで団らんする景色、コーヒーなどを飲んで一息つく景色、少しだけ家族と離れて一人になる景色…何気ない生活の中で、どのような風景を描くのかが、住宅設計だと思っています。快適な住まいを実現するには、すべての空間のつなげ方にどのような創造性があるのかが重要です。そこで、私のモットーである、家族のつながりを創造する「クリエイティブコネクションハウス」をご提案させていただきたいと思います。
牟田:クリエイティブコネクションハウス――つまり、家族の心地よいつながりを生み出す住まい、幸せな風景を日々味わうことができる住まい、ということですね。家族一人ひとりが快適に過ごせると、親も子も心にゆとりが生まれそうです。
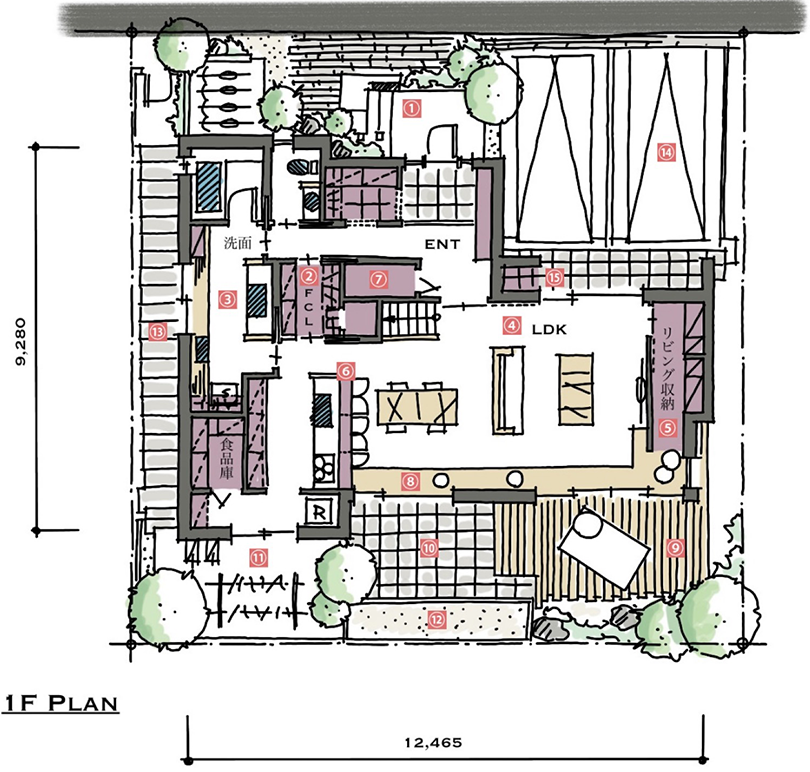
隼田:こちらが、クリエイティブコネクションハウスの考えをもとに、自己肯定感を育む住まいのモデルプランになります。

隼田:48坪2階建ての少しゆとりを持たせたプランに、理想のカタチを全て盛り込んでみました。この中に部分的にでも取り入れていただけるアイディアがきっとあるはずです。前回の対談時に、編集長から「(子育て世代のLITALICO発達ナビユーザーは)近隣への音漏れを気にしているご家庭も多い」というお話がありましたが、弊社のxevoΣ (ジーヴォシグマ)の外壁遮音性能はD-50。都市部大通りの交差點レベルの音を図書館並みの音に抑えることが可能です。
牟田:元気いっぱいなお子さまがいるご家庭では、家の中の音が外に漏れ、近隣にご迷惑をかけるのでは、と気にされる方もいらっしゃるかもしれませんが、外壁の遮音性能が高いと安心できますね。また、音の問題に加えて、安全面で多くの方が気にされるのが、お子さまが玄関から外に急に飛び出してしまうという問題。こちらについてはいかがですか?

隼田:「①玄関」では、道路に向かい真っ直ぐな動線にするのではなく、クランク動線にしています。あえて遠回りさせることで、お子さまが道路に直接飛び出す危険を回避することができます。また、玄関の動線に植栽を配置することで、緑が自然と目に入るアプローチとすることもできます。
牟田:動線の工夫ひとつで道路に飛び出す不安を軽減することができて、保護者にとって心強い設計だと思います。
隼田:そして玄関の動線を、家族用と來客用に分けました。ご家族は「②ファミリークローゼット」を通って「③洗面スペース」へ、お客様は「③洗面スペース」を通って「④リビング/ダイニング」へと、さりげなく動線を分離させています。また、家族用の玄関はドアを設けず、あえて建具をなくすことによって所作(行動の手間)を一つ省いているのです。そうすることによって所作のバリアフリーを目指します。
牟田:建具がなくても、ロールスクリーンや暖簾(のれん)で仕切ることでゆるやかに空間を分けることができますよね。
隼田:そうですね。そして玄関を通った先、リビングでくつろぐまでにはいくつかの行動パターンがあります。家族用の玄関に設置されたコート掛けにコートを掛けた後、まず著替えを済ませたい場合はファミリークローゼットで部屋著に著替え、洗面スペースに向かいます。外著はこの流れの中で洗面スペースの橫に配置したランドリーコーナーの脫衣かごに入れられます。先に手を洗いたい場合は、家族用の玄関から洗面スペースに向かいます。その後、ファミリークローゼットで著替えてもいいですし、リビングでほっと一息つくこともできます。ここまでが、家族の動線を意識した住まいの入り口部分の設計です。
牟田:玄関まわりだけでもさまざまな工夫が施されていて、圧巻です。お子さまにとっても、リビングまでの動線の中に、「コートを掛ける」「ランドセルを決まった場所に置く」「手を洗う」などの基本的な生活習慣を組み込むことができ、保護者が「手を洗いなさい!」「脫ぎっぱなしにしない!」と叱ってしまう場面もぐっと減りそうです。また、外著をすぐに著替えることができ、手を洗えるのは、感染癥予防の面からも安心できます。
隼田:室內の扉については引き戸が基本になっているので、普段の生活では開けっ放しにすることで行き來もしやすく、どの部屋にいても家族がつながることができるように設計しています。
牟田:いつもは開いたままにしておくことで、それぞれの部屋をひとつの広い空間としてつながりをもたせているのですね。用途に応じた機能を持っている部屋だけれど、一つひとつの空間を分斷せず、つながりも感じられるようにしている――だからこそ、キッチンで料理する音、洗面スペースで身支度する音、リビングでおしゃべりする聲…そうした家族の気配を感じることができる。これが、「クリエイティブコネクションハウス」なのですね。
加えて、「ドアを開ける」というひと手間を減らせるので、掃除や片付けのおっくうさも軽減しますね。大きな荷物を持ってドアを開ける、というのがお子さまにも大人にも実は小さなストレスになっていることってありますから。さらに、お客さまがいらっしゃったときは、さっと閉めれば生活感のある部分を隠すことができる。よく考えられていますね。
行動がつながる家事動線、
そして勉強と片付けがしやすい自己肯定感を育む空間設計
隼田:今回の特徴的な設計の一つが、広くゆとりを持たせた洗面スペースです。洗面化粧臺は外壁側ではなく、家の內側に向けその背面のカウンターを広く取ることで、様々なアイディアを詰め込みました。

隼田:南側の洗濯機スペースは、最近採用されることの多い、ドラム式で高さの低いタイプの洗濯機を置かれることを想定して設計しています。低い洗濯機にすることで、その上にスペースが生まれます。そこに、ハンガーパイプを渡しました。こうすることで、洗濯機から出した洗濯物を、一歩も動くことなくハンガーにかけて一旦収納することができます。
また、洗面臺とは別に小さなシンクを洗濯機近くに配置しました。お子さまが小さいと、つけおき洗いをされるご家庭も多いと思いますが、このシンクがあることで、洗濯物があって手が洗えないという場面は起こりません。シンクの背面には、物干竿をつけています。室內干しをする場合、洗濯機からほんの數歩で干すことができます。乾いた洗濯物は、物干竿の下部分に配置したカウンターで畳み、タオル類は浴室近くの棚に収納できます。アイロンがけもカウンターですぐにできます。部屋著類は近くのファミリークローゼットへ。洗面スペースまわりの動線を工夫することで、家事の手間をぐっと減らせます。
牟田:窓があるので、部屋干しとはいっても、自然の通風で乾かすことができるのですよね。1階の洗濯機から、重たい洗濯物を抱えて2階のベランダで干し、取り込んだ洗濯物を畳んでは各部屋のタンスに収納する…毎日、そんな重労働をしている方も多いと思います。
隼田:浴室橫の棚の下には脫衣かごを置いておき、脫いだ服を入れていきます。洗濯機橫の脫衣かごには外著を、浴室近くの脫衣かごには部屋著やタオルが入れられ、自然と洗濯物の種類も分かれるので、衣服の種類に仕分けて洗濯する必要がなくなります。また乾いた衣類もファミリークローゼットへ収納出來て洗濯物の収納の手間も省けます。
牟田:さまざまな作業がこの洗面スペースの中でできて、ワクワクしました。ベランダでの物干しの様子はお子さまが目にする機會も少ないですが、この洗面スペースで作業していると自然と目に入りますね。家事をしている姿を自然に我が子に見せることができますし、「ちょっとお手伝いをしてほしいな」と聲をかけることで、お手伝いの習慣が身につき、親子の觸れ合いも増えそうです。ファミリークローゼットは必要があれば自分で自室の収納に洗濯物を運ぶ家族のルールにすれば、よりお手伝いの習慣化につながるのではと思います。
隼田:次に「④リビング/ダイニング」ですが、おもちゃ等が散らかりやすい場所でもあるため、近くに収納スペースを用意することで片づけの習慣をつけることを意識しています。

テレビの裏面に「⑤リビング収納」をつくり、北側の入り口は扉をつけて內側が見えないようにして、南側は建具をつけずに手が塞がっていても行き來しやすいような違いを出しました。
収納は、1か所しか入口がないと、どうしても奧に入れたものを出しにくくなりがちです。2つ入口を設けることで、通り抜けられるように物を置かざるを得なくなります。そうすることで、片付けやすく、取り出しやすい収納スペースを実現させています。

牟田:片付けについての悩みは多くの方が持たれています。この間取りなら、遊びや勉強が終わったら、同じ部屋の中にある収納に片付けましょう、とセットで提案できて、習慣化することが容易です。違う部屋に片付けに行くのは面倒で、そのままにして叱られるという場面も出てきますが、近くの収納へなら無理なく片付けられ「上手にできたね」とほめられる機會も増えて、自己肯定感が育まれていくと思いますし、片付け習慣を身につけさせやすくなることで自立への一歩にもなりますね。
また、「⑥キッチン裏」や「⑦階段下」にも、収納が分散しているのが良いですね。広めの納戸を2階に用意しても、そこまでの動線が長いと面倒になりがちですから。大人がこまめに片づけている姿を見せられるのも良いなと思います。
隼田:そうですね。あとは、勉強する場をどこにするか。ダイニングテーブルでも、リビングの大きな機でも、ウッドデッキでも、お子さま自身の気持ちやその日の天候次第で選ぶことができるよう、設計しています。勉強や読書がしたくなるような仕掛けとして、窓際には20cm程度床を上げた「⑧座れるコーナー」を設けました。勉強する場所を固定せず、まずは勉強に向かう姿勢から身につけてほしいと考えています。
牟田:自分の好きな場所で勉強をすることで、習慣化の後押しとなると思います。リビングテーブルでは集中できないときは、窓際のスペースに座って音読をしてみたり、一人になりたいときは2階の子ども部屋で勉強したりすることもできますね。
窓際のコーナーについては、別の視點で見ても、室內を走って窓ガラスにぶつかるという不安を抱えている方もいるので、その前の緩衝にもなることで一度動きを止められ、安心感が得られるというメリットもありそうです。
冒険心も育みながら、成長に合わせて変化できる住まいへ

隼田:他にも、庭についても大切に考えていて、3種類の庭を提案させて頂きます。リビングの前は寛ぐための庭「⑨ウッドデッキ」、ダイニングの前はバーベキューもできる遊ぶ庭「⑩タイルテラス」、洗面やキッチンにつながる使う庭「⑪物干しスペース」と、用途を分けて設計しました。「くつろぐ庭」と「遊ぶ庭」と「使う庭」、それぞれの場所の役割と家族の動線を明確にしながら、つながりを創造しています。
牟田:家の中と外が自然につながりを持っているのが良いですよね。タイルテラスにある「⑫家庭菜園」で、親子で野菜を育てて食べる體験も、お子さまの好奇心や冒険心を育むことにつながると思います。また親としては、水分を含んだ重い洗濯物を洗面スペースから⑪の物干しスペースへ運ぶのに、階段を上下する必要がなく、かつ真っ直ぐな動線で移動できることも家事負擔の軽減につながります。

隼田:2階建て以上の住宅になると平面移動よりも階段を使った上下移動のハードルが高くなります。家事の負擔を考えてなるべく平面上で所作が完結するように考慮すると快適に過ごしやすいのではないでしょうか。さらに、キッチンの生ごみを外のごみ箱に入れておき、西側の「⑬裏動線」で室內を通らずに捨てに行けるようにしているのも、家事負擔軽減のための設計提案です。
北側には「⑭駐車スペース」もあるのですが、車がない時の空きスペースでLDKから目の屆く範囲でお子さまの表現力や創造力を育むためにも、縄跳びをしたり、地面にチョークで絵を描いたり、この場所で外遊びを楽しめるようにと考えています。
牟田:駐車スペースはリビングとつながる動線があるのですね。部屋の中から親の目の行き屆く範囲で遊べることは、お互いの安心感につながるのではないでしょうか。
隼田:さらに外からは見えないように囲われた「⑮外遊びのための収納」も用意しています。外遊びのおもちゃや道具を家族用の玄関や部屋の中の収納まで都度片付けるのはおっくうになりがち、そのまま放り出してしまうかもしれません。ですが、⑮のスペースを設けることで、さっとこの壁に寄せて片づけることで、すっきりします。お子さまにとっても、きちんと整理して納める『収納』とちがって周りから見えないスペースに隅に寄せるだけの『片づけ』だとハードルが低いので、習慣づけやすいと考えています。
牟田:勉強や片付けはもちろん、遊びながら冒険心を育める住まいなのですね。2階についても設計の意図を教えてください。

隼田:リビング階段を上がったところに「⑯和室」をつくり、リビングと上下階で大きくつながる空間、という位置づけで、お子さまが遊べる場所としても活用できるようにしています。和室のふすまを開けておけば、家全體の音が遮られずにつながる設計ですので、1階にいてもお子さまが遊んでいる様子が伝わってくるように考えています。
牟田:和室は客間としても使えますし、「⑰主寢室」ともつながっているのでゆっくり起きた休日に家族で過ごすなど、柔軟な活用がイメージされます。生まれたばかりのお子さまがいるご家庭では、布団で寢かせられる畳は重寶しますよね。
隼田:お子さまの成長に合わせてフレキシブルに活用できるようにと考えて、「⑱洋室」は2部屋用意しました。これはお子さまに個室を與える前に、例えば遊ぶ部屋と勉強する部屋として分けることで、場面転換がしやすいようにとの意図を持っています。1階で勉強に向かう習慣をつけた後に、より集中して勉強したい時に活用できると良いかもしれません。
牟田:大きな一部屋にしてしまうと多動的にもなりやすく、思わぬ怪我も考えられますからね。全體として家族が暮らしやすい動線を描いた上で、成長に合わせて自己肯定感を育みやすい設計が、至る所にされた住まいだと感動しています。
隼田:ありがとうございます。暮らしのカタチに正解はありませんが、まずはそれぞれ家族の風景をイメージし、その上でお子さまが勉強したり、冒険したりできる環境を用意することが、自己肯定感を育む住まいとなるのではと考えています。ぜひ皆さまにおかれましても、ご紹介したポイントを取り入れていただき、住まいづくりの參考にしていただけると幸いです。
まとめ
まずは前提として、家族が暮らしやすい、つながりやすい動線設計をすることで、良好な家族の関係性をつくる。その上で、ストレスが減り、叱る機會が減り、褒める機會が増えるような設計を取り入れることで、お子さまの自己肯定感を育むことができる。そんな想いを込めたプランをご提案させていただきました。
自己肯定感を育む住まいのプランには、以下の工夫がありました。
- 実際の行動をイメージし、ストレスの少ない動線を設計する。
- 洗濯をはじめとした家事動線をスムーズにすることで、保護者の気持ちにゆとりが生まれる。
- 建具で區切らずに空間をつなげ、どの部屋にいても家族のつながりを感じられる。
- 遊びや勉強と片付けの動線をセットにすることで、片付け習慣が自然に身につけられる。
- 勉強する場所を固定しすぎず、リビングなどにもいくつかポイントを設け、まずは勉強に向かう習慣をつける。
- 室內や外のスペースを活用しながら、保護者の目の屆く範囲で冒険心を育めるようにする。
- お子さま自身がその日の気分で居心地のいい場所を選択できることに加えて、その後の成長過程に合わせて柔軟に変化していけるようにする。
今回ご紹介したのは、提案アイディアをすべて盛り込んだ「フルボリュームver.」ですが、これらのアイディアを部分的に取り入れることで、自己肯定感を育む住まいづくりに近づくことができるはず。
さらに、大和ハウス工業のMy House Palette會員特典として、ハウジングマイスター隼田が提案する「自己肯定感を高める住まい」のアイディアのエッセンスを盛り込んだ、現実的な30坪臺のプランを無料でダウンロードすることができます。ぜひ下記より登録&ダウンロードして、皆さまのお住まいづくりの參考にしていただけたらと思います。











