きずなとはぐくみ昔の住まいと暮らしに注目した新しい住まい
日本の伝統的な暮らしの中でつちかわれてきた、子育てのよさに著目しました。
住まいを中心として、家族だけでなく地域ともつながるコミュニケーション。そして、ゆるやかに空間を仕切ることで、人を思いやる気持ちを育て自立を促します。今だからこそ見つめ直したい、住まいと暮らしのカタチです。
昔の住まいには「子育てや暮らし」のヒントがあったこと、ご存知ですか?
【パパ?ママに聞いてみました】
あなたは子どもに対して、きちんとしつけができていますか?
しつけとは、叱ることではなく、「教えること」「伝えること」。その機會が少なくなった家庭は、「しつけ力」も落ちてきます。昔の親は確かに今の親よりも、子どもたちをよく叱っていたかもしれません。でも、同時に、いろんなことを伝えていました。「昔はどの子もしつけが行き屆いていた」といわれるのは、それだけたくさん親から子どもへ伝え、教えていく機會があったということ。それさえできれば、現代の子どもも、「よくしつけられた子ども」になっていくのではないでしょうか。

出典:內閣府調査 平成19年度版 國民生活白書
昔の住まいには家族のきずなを結び、子どもたちをはぐくむ仕掛けが あったのです。
昔の住まいには、ルールやマナーが、たくさん必要とされてきました。「タタミの上では暴れない」「障子やふすまは力いっぱい開け閉めしない」…。昔の住まいで暮らそうと思うと、そういったごく當たり前のことが求められます。これらは現代人の忘れがちな、「他人を思いやる」「ものを大切にする」といった、人として大切なことを教えてくれます。昔の住まいの中で暮らす人たちは、自然にそれらを身につけてきたのです。

そこで誕生したのが…きずなとはぐくみが築ける住まいです!
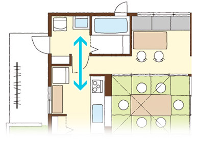
南入り玄関プラン
1F:67.28m2 / 2F:59.78m2 / TOTAL:127.06m2[38.43坪]

【きずなspace】
家族がどこにいてもつながるヒロマ&フキヌケの魅力
<きずなPOINT>
住まいの中心にある開かれた空間がコミュニケーションを促進
1階の中央に設けたヒロマは、家全體のスペースとつながっています。建具を開け放てば、フロア全體を見渡すことができるうえ、フキヌケを通じて2階にいる家族の気配も感じられます。いつの間にか家族と會話する機會が増え、家族みんなの距離感がグッと縮まることでしょう。
また、1階の他のスペースよりも約20cm床を高くしたことで、大人が別の場所にいても、ヒロマでリラックスしている子どもと目線を合わせやすいという特長もあります。スイジバで作業をしていても、自然に子どもが視界に入ってくるので、しっかりと見守ることもでき、いつでも安心して過ごせます。

【はぐくみspace】
居心地のいいくつろぎ空間づくり「みんなのイバショの過ごし方」
<はぐくみPOINT>
ヒロマと緩やかにつながるリビングスタイルのスペース
住まいの中心にあるヒロマと緩やかにつながりながら、比較的プライベートな場所として使いこなしていけるのが、1階に2カ所設けられた、みんなのイバショ。広めの1カ所には、ソファやローテーブル、テレビやオーディオ類を設置して、リビング感覚で使いこなせるスペースにしてみましょう。みんなでお出かけしたときに撮影した思い出のDVDを観たり、子どもに絵本を読んであげるのにも、ぴったりの空間です。大勢のお客さまが遊びに來たときは、ヒロマの建具を開放し、みんなのイバショも含めた広々としたワンルーム空間としてくつろぐこともできます。

【きずなspace】
受け継がれていく日本のしきたりをエンガワドマではぐくむ
<きずなPOINT>
ご近所さんとの交流もうながす「ウチ」と「ソト」をつなぐ場
ご近所さんといっしょに、楽しく井戸端會議。そのきっかけ作りに役立つのが、エンガワドマです。エンガワとドマは30cmほどの段差があるので、心地よい木の感觸を味わいながらちょっと座って、庭を見ながらリラックス。そんなのんびりとした日常の中では、ご近所さんとの交流も活発になるはず。「いらっしゃい」「また來てね!」という、溫かいあいさつが聞こえてくるような住まいに。
また、地域の子どもたちが集まって、みんなでわいわい遊ぶにもぴったりのスペースになります。明るい日ざしを取り込む大きな窓を開けておけば、屋外テラスと段差なくつながるので、広々とした庭感覚で過ごすこともOKです。


【はぐくみspace】
好奇心や思いやりの気持ちをはぐくむマナビバは家族共有の空間
<はぐくみPOINT>
自発的な勉強の習慣づけや譲り合いの気持ちを
2階にあるマナビバは、ちょっぴりプライベートな家族の共有空間。子どもがまだ、「學び」を必要としない小さいうちは、ママやパパが調べものをしたり、趣味のために使うことができます。そうやって、日常的に親が本を読んでいる姿などを目にすることで、子どもはいつの間にかそれをまねしたがるようになっていくもの。自然に子どもの學びの習慣がつくようになっていきます。また、家族それぞれが興味を持っている本や雑誌、趣味のアイテムなどを置いておくことで、お互いのことを理解しあうことができるように。さらに、空間や物を共有することで、相手を思いやる気持ちがはぐくまれていきます。

【はぐくみspace】
添い寢から自立まで活用する子どものイバショとは?
<はぐくみPOINT>
成長に応じて使い分けられるタタミの空間
今すぐには必要はないけれど、子どもが成長したら個室を用意してあげたい。そのためのスペースが、子どものイバショ。小さいうちは親子でいっしょに眠ることができるし、マナビバと合わせて家族共有の大きなワンルーム空間としても使えます。床は柔らかい感觸のタタミですから、親子のスキンシップにもぴったりです。使い勝手のいい収納スペースを生かして、ベッドではなくふとんを使うようにすれば、いつでもフロアはスッキリ。將來、子どもが大きくなったら、布団の上げ下ろし習慣をつけてあげることもできます。障子でゆるやかに仕切っているので、部屋にいながらも家族の気配を感じられるのがポイントです!

【きずなspace】
その家でもっとも長く暮らす夫婦のイバショを重視する
<きずなPOINT>
夫婦だけの空間と時間を共有してコミュニケーションを
小さいうちは子どもといっしょに寢起きしたいけれど、成長したらやっぱり夫婦だけの寢室が必要になるもの。そのときのためにも用意したのが夫婦のイバショです。ベッドを置くスペースだけではなく、テーブルを置いたりしてちょっとくつろげる、ゆとりをもたせた造りになっています。ここで、夫婦だけの空間と時間を共有しあうことで、いつまでも親密なコミュニケーションをはぐくめるんです。子どもの進路や家計などについて、夫婦でじっくり語り合いたいときにも便利。おうちの中で少し獨立した部屋になっていますが、フキヌケに面しているため、小窓を通して住まい全體の気配を感じ取れます。

【Catch Topic vol.1】
スマート家事動線で家族のコミュニケーションがUP!
家族のコミュニケーションをもっと高めるため、コンパクトで機能的な造りを目指しています。家族みんなで協力しあいながら家事をこなしたり手早く終わらせた分、子どもと遊ぶ時間も増えるなど、メリットがいっぱい!
ドマから直接スイジバに入れるから買い物帰りに便利!
キッチンスペースをスイジバと呼んでいます。スイジバは、玄関からほど近い位置にあり、ドマから直接出入りが可能。買い物帰りの荷物の搬入やゴミ出しなどが、とってもラクチン。また、スイジバにいても、出かけるときや帰宅時に、すぐに子どもに聲をかけられるのもうれしいポイントです。

大きな食品庫があるから、たっぷり買い置きができる
スイジバは約5畳のコンパクトな空間。調理や後片づけが効率的にこなせます。そのスペース內に、大きなパントリーを完備。常溫で保存しておけるものは、ここにたっぷりストックできるんです。まとめ買いして帰ってきたら、ドマから直接パントリーに運べるのが便利。整頓しやすいスペースだから、買い置きが一目瞭然です。

スイジバと洗面室が近いから、家事が同時に進められる!
スイジバのすぐ近くには、洗面室を配置。料理をしながら、パパッと洗濯も済ませて…と、家事が同時進行できるんです。また、スイジバにいながらも、歯磨きしたりお風呂から上がってきた子どもの様子を確認できるのも安心。スイジバとヒロマの間には、開口部があるので、ヒロマの様子もすぐに視界に入ってきます。

モノホシバが1階にあるから、洗濯が終わったらすぐに干せる!
子育て中は、洗濯物が多くなりがち。洗濯機を設置する洗面室のすぐ橫に、モノホシバがあると、洗濯、物干し、取り込むまでの作業が、とてもスムーズにできるんです。モノホシバが1階にあるから、子どもにお手伝いしてもらうのも安心。家事を楽しいコミュニケーションの時間に、生まれ変わらせることもできるんです。

【Catch Topic vol.2】
子どもが成長しても暮らしやすい!
家族の親密な関係を保ちながら、子どもたちの自然な自立もうながしていく。子どもの成長に応じて、2階の各スペースをフレキシブルに使いこなしていけます。
ベビー?キッズ 0~6歳
子どもが個室を必要としない間は、子どものイバショとマナビバを合わせて、大きなワンルーム空間として使えます。家族で添い寢するのにも十分なスペースに。

ジュニア 7~12歳
自分だけの空間を欲しがったら、子どものイバショを活用。ふすまで仕切られた居心地のよい空間で、家族の気配を感じながらひとりで寢る自立心をはぐくみます。

ティーンズ 13歳~
中學生になったら、それぞれの個室を寢室として使用。自分の私物を管理することや、集中して學ぶことを覚えられます。マナビバは、この時期も共有空間として活用。

子育てについて考える






