イメージしている
理想の暮らしを実現する

30代子育て世帯のプラン。
L型に張り出した屋根下の大きな2層吹き抜けと
広々としたバルコニーにより、
空につながる明るく開放的な2階リビングの暮らしを実現します。
また、袖壁やバルコニー腰壁を高くすることで、
プライバシー性と開放感を両立しました。
※外壁:グライフェルス柄(ココンホワイト)/クラウドクリフ柄(ダークモカ)
タイル:パウザストーンPRIME(VM)
※面積は、ガレージを含む

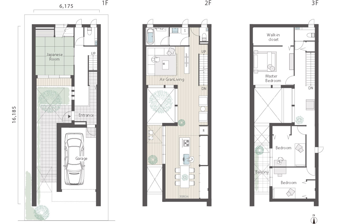
都市の3階建てへのニーズで多いのは「収納量」です。
そのため、家族みんなで使える大容量の
ウォークインクローゼットを3階に設置しました。

50代子育て世帯のプラン。庇を3層にリズムよく配し、
水平ラインが際立つ伸びやかな外観美は街のシンボルとなります。
2層吹き抜けとパノラマビューの2面大開口を通して、住まい全體に光を拡散。
広々としたバルコニーとつながる2階リビングは、想像以上の明るさと広がりがあります。
また、安全で便利なシャッター付きビルトインガレージも設置しました。
※外壁:ミュゼレート柄(クリアチタンダーク)
タイル:カサータ(HAL-2/CS-1)
※面積は、ガレージを含む

上下階の移動をスムーズにするホームエレベーターを設置。
省スペース用から車椅子対応まで、
ニーズにあわせてお選びいただけます。

40代子育て世帯のプラン。
將來の子どもの獨立を想定して、建物に余裕を持たせました。
暮らしの中心である2階リビングは、LDKとバルコニーが一體化した開放的な空間に。家族の心地よいつながりを演出するとともに、外観のアクセントとなります。
※外壁:ミュゼレート柄(ココンホワイト)/クラウドクリフ柄
(ダークモカ)
タイル:カサータ(HAL-2/CS-8)
※面積は、ガレージを含む

屋內と屋外の段差をなくした掃き出し窓。
転倒の危険が少なく、テラスやバルコニーへの
出入りもスムーズです。
※建物仕様により対応できない場合があります。

テレワークにストレスなく専念できる、
防音仕様のクローズド空間。
聲が外に漏れず、家族の生活音も気になりません。

40代子育て世帯のプラン。
敷地は間口が狹く、奧に長い都心部特有の狹小地のため、
住まいの中心にシンボルツリーのある中庭を設置。
すべての空間に光と緑を屆けるとともに、
家族の気配をさりげなく伝えます。
また、袖壁により、
プライバシーに配慮した2階リビングの暮らしを実現します。
※外壁:Belxiix G柄(ココンホワイト)
タイル:コルトン(KRT/CG)
※面積は、ガレージを含む

中庭のシンボルツリーを眺めながら、
光と風に包まれる心地よいバルコニー空間。
袖壁が外部の視線を遮り、
カーテンのいらない開放的な暮らしをかなえます。

40代二世帯同居のプラン。
二世帯ですべての空間を共有する、ふれあい重視の融合同居に。
外観は大開口や壁面などを効果的に配置し、
水平と垂直のラインが調和する雄大な造形美を演出。
間口の広い角地に街のシンボルとして構えます。
2層吹き抜けのある2階リビングが暮らしの中心となり、
2臺駐車できるビルトインガレージが暮らしのゆとりを広げます。
※外壁:Belxiix S柄(ココンホワイト)/Belxiix S柄(クリアチタンダーク)
※面積は、ガレージを含む

敷地に制限があるなかで空間をより広げるために、
ガレージのスペースをひとつの部屋として
室內に取り込みました。
サロンやホビースペース、子どもの遊び場など、
フレキシブルに活用できます。
※掲載の畫像は設計図面を基にCGで作成したものであり、実物とは多少異なる部分があります。

